Aumüller Druck GmbH & Co KG in Regensburg automatisiert
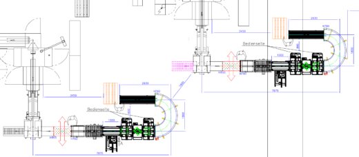
Persönliche Sympathie und Wertschätzung ergeben häufig eine langanhaltende Partnerschaft, von der beide Beteiligten profitieren. Das zeigte sich zum Beispiel auch wieder in der Zusammenarbeit zwischen Fa. Merten und Fa. Wamatec, welche wir durch ein neues Projekt auch in Zukunft erfolgreich weiterführen können. So wurden zwei 6-Achs-CNC-Dreh/Fräsmaschinen mit automatischer Materialzuführung und abschließender Fertigteilentnahme bei dem Team von Herrn Ing. Hermann Hulak bestellt.



